la casa de vacaciones ...
... en verano en la terraza ... en invierno junto a la chimenea
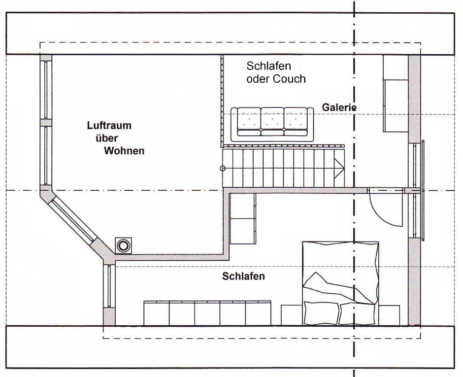
La casa tiene una superficie habitable de 68m² y ofrece espacio para hasta 5 + 1
personas en 2 plantas, muy adecuada para familias con niños.
En el primer piso se encuentran el dormitorio y una galería abierta con una cama doble.
En la planta baja tiene la sala de estar con cocina abierta, el baño y un inodoro separado.
Mobiliario
- sala de estar abierta con vista a través de ventanas panorámicas
- cocina espaciosa con mesa de comedor extensible
- aire acondicionado en la galería y en el dormitorio
- calefacción por suelo radiante y chimenea
- TV vía satélite y reproductor de Blu-Ray / DVD, radio
- WiFi gratis
- Dormitorio 1 cama doble y 1 cama individual ( 1 cama supletoria posible)
- en la galería 1 cama doble
- Baño grande con ducha
- WC en una habitación adicional
- Lavadora
cocina
- vitrocerámica y horno
- lavavajillas
- frigorífico con congelador
- microondas
- cafetera y tetera
- tostadora




